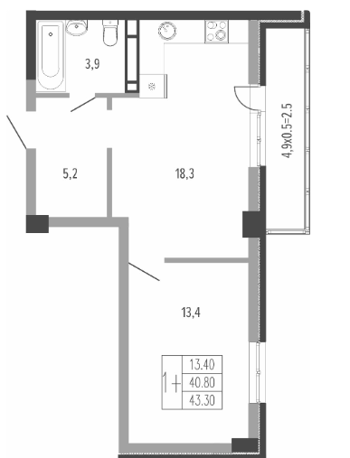
Купить 2 комнатную квартиру 71 м2 9/24 на Достоевского.
Продам квартиру в доме бизнес класса. Закрытая территория с детской и спортивной площадками, консьерж, 3 лифта, подземная парковка, парковки во дворе и снаружи дома. Дом расположен в районе с развитой инфраструктурой, в 3-х минутах от остановки трамваев. Рядом Магниты, Пятерочка, Табрис, 2 рынка, 3 школы, несколько садиков. Квартира просторная, светлая и теплая. Комнаты и кухня квадратные.












