Купить коттедж 256 м2 КП Курорт Собер Баш.
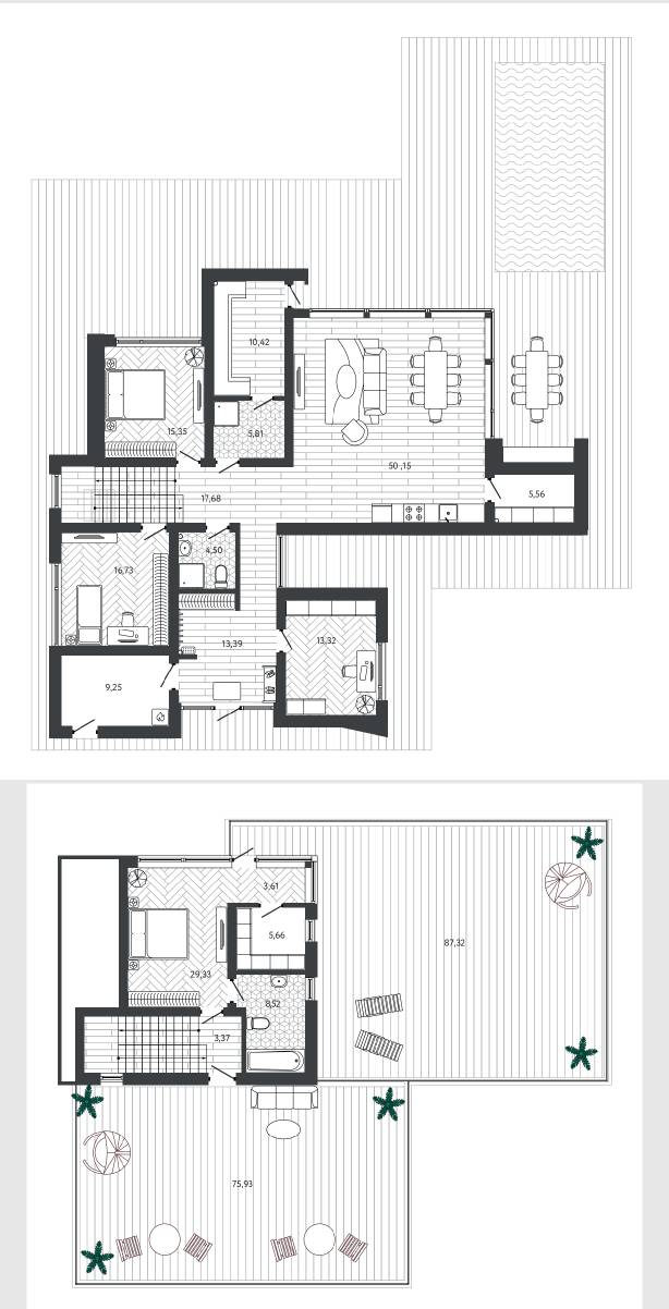
Откройте для себя шик и современность одном из пяти авторских проектов в стиле хай-тек Курорта Собер Баш. Площадью 256 м2, он поражает плоской эксплуатируемой крышей, панорамным остеклением и инновационными решениями. Каждая деталь – от металлических акцентов до умных систем освещения – отражает хай-тек стиль. Территория коттеджа огорожена забором для максимальной изоляции.
Курорт Собер Баш – ближайший элитный курорт к Краснодару, мекка для тех, кто мечтает о постоянном доме среди гор. Здесь вашему коттеджу соседствуют виллы премиум-класса, пятизвёздочный отель с wellness-зонами, термальный комплекс с минеральными ваннами, глэмпинг для романтических ночей, винодельня. Звоните, чтобы договориться о просмотре и стать владельцем роскошного дома мечты!











