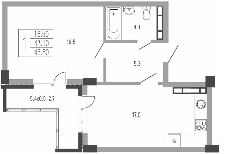
Купить 1 к квартиру 46 м2 5/15 ЖК Екатерининский Парк.
Жилой комплекс бизнес класса Екатерининский парк расположен в самом благоустроенном, с точки зрения городской инфраструктуры, Фестивальном микрорайоне. Здесь уже есть в шаговой доступности: детские сады и школы, скверы, социальные объекты, рестораны и клубы, быстрый выезд в центр, новая транспортная развязка. Огороженная территория позволяет почувствовать себя дома ещё до того, как жители поднимутся в свои квартиры. Вы можете не беспокоиться за детей, гуляющих во дворе. Закрытая территория. Круглосуточное видеонаблюдение за территорией. Многоуровневая система контроля доступа (домофония). Консьерж-сервис в каждом доме. Выразительная архитектура, грамотное сочетание материалов, органичные цветовые решения — «Екатерининский парк» выделяется на фоне застройки не только Фестивального микрорайона, но и всего Краснодара в целом.
ВСЕ Новостройки Краснодара и пригорода ДОСТУПНЫ ЗДЕСЬ.












